CUSTOM T3
[ 01 ] FEATURES
01.Main seismic steel frame
02.Good sound insulation and noise reduction
03.Wide field of vision
04.Intelligent voice system
05.Wet dry separation bathroom
06.Waterproof mortar backfilling and reinforcement
07.Convenient integrality house
08.Environmental Protection Low Cost Recycle
[ 02 ] DESCRIPTION
Prefab house represent a fascinating example of innovative urban design and architecture.The customized T3 occupies 26.4 m2 and can accommodate 2 people, which have steel structure for the main frame and hot-dip galvanized steel pipe. We use polyurethane 100mm foam to assure thermal insulation. The mortar backfilling make the whole house more stronger. All the basic decoration is made of high-quality materials, and we will make you shine with the details.

[ 03 ] CAPSULE PURPOSE
The capsule house is designed to maximize functionality within a limited footprint, often featuring modular furniture and multi-purpose design elements to make the most efficient use of space. Its modular nature allows for creative interior design, with multi-functional furniture that maximizes limited space. Furthermore, It promotes a minimalist lifestyle, encouraging residents to streamline their possessions and focus on essential living. Additionally, the house is energy-efficient, using less power and resources, which aligns with sustainability goals. Choosing a capsule house is becoming a popular lifestyle for young people!

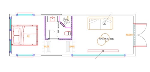
[ 04 ] EXAMPLE CAPSULE LAYOUT
The total area of model T3 is 27m2 , the size is 3300*8000*3200mm. The interior is designed with three main areas: Living room(which can put an open kitchen),bedroom and bathroom4.5m2. Bathroom has bath heater, toilet, Instantaneous shower and faucet. The house also equips with smart door locks and air conditioning, providing convenience and comfort.
[ 05 ] CAPSULE FEATURES
Intelligent and smart
One of the key features of capsule house is their intelligent control system, which allows us to manage various amenities with ease. From adjusting the temperature to controlling the lighting and even operating appliances, these systems provide a convenient and efficient way to manage the capsule house living space.The intelligent control system transforming them from simple room into technologically advanced living spaces.
Strong wind resistance
Space capsule houses are designed with robust features to withstand strong winds, including a strong seismic steel frame, high-strength galvanized hinges, and a compact, aerodynamic shape. The capsule houses are also waterproof, heat-preserving, sound-insulated, fire-resistant, and highly durable against rust, ensuring long-term functionality and safety.
Earthquake resistance
SUNINN Space capsule houses are designed to withstand powerful earthquakes like magnitude 9 events due to their robust construction and innovative design principles.The use of high-quality materials, combined with a carefully calculated design that considers the forces generated by earthquakes, enables space capsule houses to remain intact and protect occupants even during extreme seismic events.
Durable
SUNINN Capsule houses, a modern take on compact living, boast a remarkable 50-year lifespan thanks to our innovative construction. Constructed with durable materials like aviation-grade aluminum veneer, the use of advanced manufacturing techniques and a robust production process ensure long-lasting quality.
Environment and technical
Capsule houses are prefabricated, compact living spaces designed for minimalist living. They feature modern technology like smart home systems and energy-efficient materials. All of them are built with sustainable materials and are easy to assemble, making them a popular choice for environmentally conscious consumers.
Fast installation
SUNINN Capsule houses are prefabricated structures, meaning they are built off-site and shipped as modular units. This allows for faster assembly, as the individual components are already complete and ready to be joined on-site. The modular design also eliminates the need for extensive on-site construction, reducing labor time and construction waste.
Do you have more questions?





